Wettbewerb Tagesbetreuung Hebel
St. Gallen, 2019
Das vorgeschlagene Projekt für die Tagesbetreuung Hebel besteht aus einem Neubau, der an die Gotthelfstrasse gerückt ist. Dadurch entsteht östlich vom Gebäude ein hofartiger Aussenbereich. Dieser ist durch die Topographie auf natürlich Art und Weise von der Strasse geschützt und ist durch die Gestaltung mit grossen Bäumen und einem Wasserbecken ein lauschiger Aufenthaltsort. Durch die Setzung des Gebäudes entsteht ein einseitig zugängliches Sockelgeschoss, welches die Anlieferung, den Personaleingang und dienende Räume wie Garderoben, Lagerräume und Technik enthält.
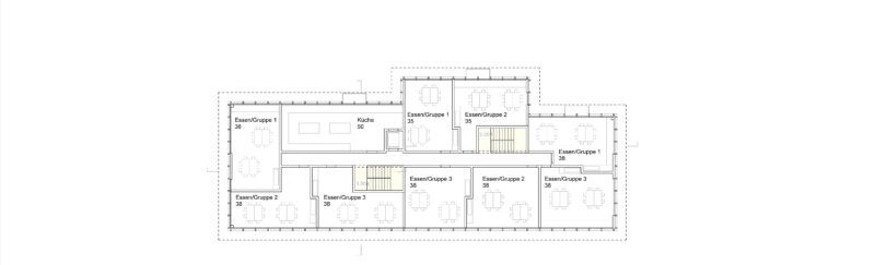
Jede Horteinheit verfügt über einen eigenen Eingangsbereich mit Garderoben-Nische. Insgesamt hat es zwei vertikale Erschliessungszonen mit eigener WC-Anlage im Erdgeschoss. Die Themen- und Bewegungsräume der drei Horteinheiten sind alle auf dem Erdgeschoss untergebracht und können – durch das Öffnen einer Faltwand – zu einem grossen Raum für Anlässe oder Elternabende geöffnet werden. So kann für jede Einheit ein hell belichteter Saal angeboten werden. Im Obergeschoss sind die Gruppenräume untergebracht. Diese können von der zentral gelegenen Küche ebenerdig mit dem Essen versorgt werden und stehen ansonsten für ruhigere Aktivitäten zur Verfügung. Anstelle einer zentralen Handwasch- und Zahnputzgelegenheit wird diese in den jeweiligen Gruppenräumen angeboten.
In beiden Treppenhäusern lassen Oblicht-Laternen den innersten Bereich des Gebäudes mit natürlichem Sonnenlicht erhellen.
Die Fassade mit den Versprüngen, der vertikalen Gliederung, dem vorspringenden Dach und dem textilen Sonnenschutz verleiht dem Gebäude Leichtigkeit und einen Pavillon-artigen Ausdruck. Durch das verbindende Fassadenraster entstehen verschiedene Reaktionsmöglichkeiten auf innere Bedürfnisse. So können in den Aufenthaltsräumen raumhohe Fenster angeboten werden, welche in der Art eines französischen Balkones viel Luft und Licht in die Räume lassen. Bei den WC-Anlagen und Garderoben können kleine Fenster genutzt werden, welche im oberen Raumbereich liegend nur gekippt werden können. Die meisten Räume verfügen über eine Sitzbank entlang der Fassade, welche mit Stauraum versehen ist und den Kindern die Möglichkeit bieten, den Blick beim Spiel in die Ferne schweifen zu lassen.