Sanierung Einfamlienhaus

St. Gallen, 2014

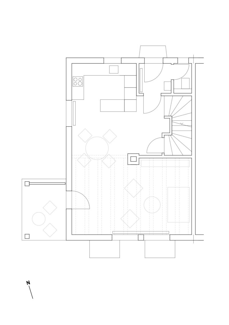
Nach dem Kauf des Hauses aus dem Jahr 1945 wollten die Eigentümer vor dem Bezug eine Auffrischung der Innenräume und eine technische Sanierung vornehmen. Zudem sollte durch angemessene Massnahmen der Dämmperimeter verbessert werden. So wurden die Fenster erneuert, das Dach und die Decke des Untergeschosses gedämmt.

Durch den Ausbau des Dachstocks konnte Wohnfläche dazugewonnen werden. Die räumlich knappen Nasszellen veranlasste dazu, die Badewanne freistehend in den Dachstock zu platzieren. Das Badezimmer im Obergeschoss hat so an Grosszügigkeit gewonnen.

Der Ersatz der Elektroanlage, des gesamten Heizungssystemes und der Sanitärleitungen legte nahe, die Nasszellen und die Küche gesamthaft zu erneuern. Die Ölheizung wurde durch eine Wärmepumpe mit Erdsonde ersetzt, welche im Vorgarten gebohrt wurde.

Fotografie: Ladina Bischof, Arbon

Christine Egli
Architektur