Erweiterung Einfamilienhaus
St. Gallen, 2016
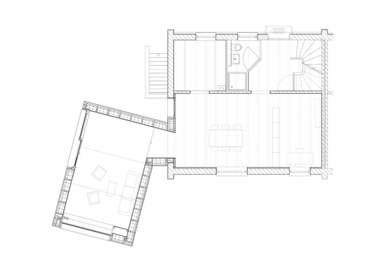
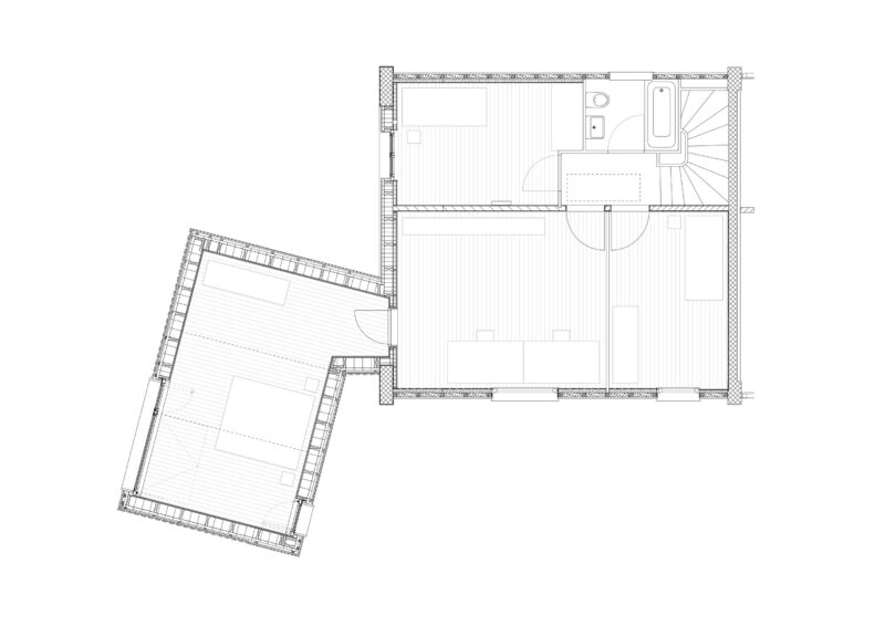
Das bestehende Haus aus dem Jahr 1947 ist mit seiner knappen Wohnfläche für die vierköpfige Familie zu klein geworden. Da das Objekt in einem Gebiet mit ‘besonderem baulichen Erscheinungsbild’ steht, sollte die Erweiterung als Addition an den Bestand ablesbar sein. Durch die Einverleibung der Balkonschicht im 1.OG gegen Westen und die Erweiterung mit einem zweigeschossigen Anbau konnte die Wohnfläche rund um die Hälfte vergrössert werden. Durch den Anbau wird der sehr grosszügige Garten zoniert und ist immer noch genügend geräumig zum Spielen und Verweilen.
Das Wohnzimmer im Anbau Erdgeschoss öffnet sich in Richtung Garten und besitzt über ein Fenster mit Sitzbank und Einbaumöbel, welches zum Lesen oder Spielen einlädt. Die Ergänzung der Wohnfläche im Obergeschoss ergibt ein Doppel-Zimmer, welches von den Eltern als Schlaf- und Hobbyzimmer genutzt werden kann. Für die Kinder wird das West-Zimmer durch das Verschieben der Aussenwand nutzbar gemacht.
Der Anbau wurde in viermonatiger Bauzeit in Holz-Elementbauweise errichtet. Sämtliche Arbeiten wurden in enger Zusammenarbeit mit lokalen Handwerkern ausgeführt.
Vorstudien und Projekt: Forrer Stieger Architekten, St. Gallen
Fotografie: Ladina Bischof, St. Gallen